GYC系列大安培接觸器
產品介紹:GYC系列大安培接觸器適用于交流50\60Hz,電壓至1000V,電流至1600A的電路中,可控制各種類型的電動機,可控制電阻、電感和電容性電路:加熱、照明、功率補償、變壓器控制配電電路、工業配電,綠色電源配電。
價格:
促銷:
{{cuxiaoname}}
產品介紹
咨詢服務熱線:13957717877
產品概述
資料下載
相關產品
相關資訊


GYC系列大安培接觸器產品選型:



GYC系列大安培接觸器產品特性:

GYC系列大安培接觸器產品結構:


GYC系列大安培接觸器技術參數:




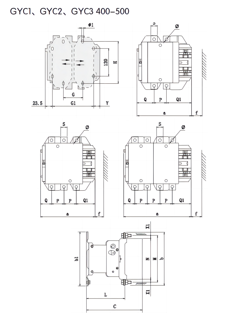
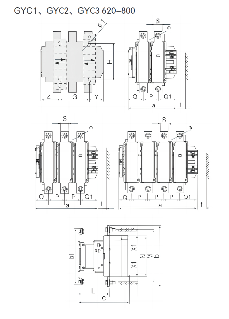
GYC系列大安培接觸器產品尺寸:

| 單位:mm | |||||||||||||||||||||
| GYC1、GYC2、GYC3 | P | Q | Q1 | S | 中 | f | b | bl | M | N | C | L | G | H | φ1 | G1 | Z | Y | X1 | ||
| 500V | >500V | ||||||||||||||||||||
| 1151) | 163.5 | 37 | 29.5 | 60 | 15 | M6 | 131 | 162 | 137 | 147 | 124 | 171 | 107 | 80 | 120-106 | 6.5 | 106 | 13.5 | 44 | 10 | 15 |
| 11541) | 200.5 | 37 | 29.5 | 60 | 15 | M6 | 131 | 162 | 137 | 147 | 124 | 171 | 107 | 80 | 120-106 | 6.5 | 143 | 13.5 | 44 | 10 | 15 |
| 1501) | 163.5 | 40 | 26 | 57.5 | 20 | M8 | 131 | 170 | 137 | 150 | 124 | 171 | 107 | 80 | 120-106 | 6.5 | 106 | 13.5 | 44 | 10 | 15 |
| 15041) | 200.5 | 40 | 25 | 55.5 | 20 | M8 | 131 | 170 | 137 | 150 | 124 | 171 | 113.5 | 80 | 120-106 | 6.5 | 143 | 13.5 | 44 | 10 | 15 |
| 185、205 | 168.5 | 40 | 29 | 59.5 | 20 | M8 | 130 | 174 | 137 | 154 | 127 | 181 | 113.5 | 80 | 120-106 | 6.5 | 117 | 13.5 | 44 | 10 | 15 |
| 1854、2054 | 208.5 | 40 | 29 | 59.5 | 20 | M8 | 130 | 174 | 137 | 154 | 127 | 181 | 113.5 | 80 | 120-106 | 6.5 | 151 | 13.5 | 44 | 10 | 15 |
| 225、245 | 168.5 | 48 | 21 | 51.5 | 25 | M10 | 130 | 197 | 137 | 172 | 127 | 181 | 113.5 | 80 | 120-106 | 6.5 | 117 | 13.5 | 44 | 10 | 15 |
| 2254、2454 | 208.5 | 48 | 17 | 47.5 | 25 | M10 | 130 | 197 | 137 | 172 | 127 | 181 | 113.5 | 80 | 120-106 | 6.5 | 151 | 20.5 | 44 | 10 | 15 |
| 265 | 201.5 | 48 | 39 | 66.5 | 25 | M10 | 147 | 203 | 145 | 178 | 147 | 213 | 141 | 96 | 120-106 | 6.5 | 140 | 20.5 | 38 | 10 | 15 |
| 2654 | 244.5 | 48 | 34 | 66.5 | 25 | M10 | 147 | 203 | 145 | 178 | 147 | 213 | 141 | 96 | 120-106 | 6.5 | 186 | 20.5 | 38 | 10 | 15 |
| 300、330 | 213 | 48 | 43 | 74 | 25 | M10 | 147 | 206 | 145 | 181 | 158 | 219 | 145 | 96 | 120-106 | 6.5 | 154.5 | 20.5 | 38 | 10 | 15 |
| 3004、3304 | 261 | 48 | 43 | 74 | 25 | M10 | 147 | 206 | 145 | 181 | 158 | 219 | 145 | 96 | 120-106 | 6.5 | 202.5 | 20.5 | 38 | 10 | 15 |
| 1)不含GYC2接觸器。 | |||||||||||||||||||||
| 1)GYC2 Contactor is not included. | |||||||||||||||||||||

| GYC1、 GYC2、GYC3 | d | P | Q | Q1 | S | φ | f | b | bl | M | N | C | L | G | G1 | φ1 | H | Y | X1 | |
| 500V≤ | >500V | |||||||||||||||||||
| 4002、4102 | 213 | 48 | 69 | 96 | 25 | M10 | 151 | 206 | 209 | 181 | 158 | 219 | 145 | 80(66-102) | 170(156-192) | 8.5 | 180 | 19.5 | 15 | 20 |
| 400、410 | 213 | 48 | 43 | 74 | 25 | M10 | 151 | 206 | 209 | 181 | 158 | 219 | 145 | 80|66-102) | 170(156-192) | 8.5 | 180 | 19.5 | 15 | 20 |
| 4004、4104 | 261 | 48 | 43 | 74 | 25 | M10 | 151 | 206 | 209 | 181 | 158 | 219 | 145 | 80(66-102) | 170(156-192) | 8.5 | 180 | 67.5 | 15 | 20 |
| 4752、5002 | 233 | 55 | 76 | 102 | 30 | M10 | 169 | 238 | 209 | 208 | 172 | 232 | 146 | 80(66-102) | 170(156-192) | 8.5 | 180 | 39.5 | 15 | 20 |
| 475、500 | 233 | 55 | 46 | 77 | 30 | M10 | 169 | 238 | 209 | 208 | 172 | 232 | 146 | 80(66-102) | 170(156-192) | 8.5 | 180 | 39.5 | 15 | 20 |
| 4754、5004 | 288 | 55 | 46 | 77 | 30 | M10 | 169 | 238 | 209 | 208 | 172 | 232 | 146 | 140(66-175) | 230(156-265) | 8.5 | 180 | 34.5 | 15 | 20 |

| 單位:mm | ||||||||||||||||||||
| GYC1、GYC2、GYC3 | d | P | Q | Q1 | S | φ | f | b | bl | M | N | C | L | G | H | φ1 | Z | Y | X1 | |
| 500V< | >500V | |||||||||||||||||||
| 6202、6302 | 309 | 80 | 102 | 127 | 40 | M12 | 201 | 304 | 280 | 264 | 202 | 255 | 155 | 180(100-195) | 180 | 10.5 | 60.5 | 68.5 | 20 | 30 |
| 620、630 | 309 | 80 | 60 | 89 | 40 | M12 | 201 | 304 | 280 | 264 | 202 | 255 | 155 | 180(100-195) | 180 | 10.5 | 60.5 | 68.5 | 20 | 30 |
| 6204、6304 | 389 | 80 | 60 | 89 | 40 | M12 | 201 | 304 | 280 | 264 | 202 | 255 | 155 | 240 (150-275) | 180 | 10.5 | 60.5 | 68.5 | 20 | 30 |
| 800 | 309 | 80 | 60 | 89 | 40 | M12 | 201 | 304 | 280 | 264 | 202 | 255 | 155 | 180(100-195) | 180 | 10.5 | 60.5 | 68.5 | 20 | 30 |

| 單位:mm | ||||||||||||||||||||||
| GYCl | a | P | Q | Q1 | S | T | φ | f | b | bl | M | N | C | L | G | G1 | H | φ1 | Y | Z | X1 | |
| 500V< | >500V | |||||||||||||||||||||
| 7802 | 389 | 160 | 100 | 120 | 60 | 26 | M12 | 201 | 435 | 280 | 400 | 202 | 255 | 165 | 240 | 一 | 180 | 10.5 | 88.5 | 60.5 | 30 | 35 |
| 780 | 704 | 160 | 192 | 192 | 60 | 26 | M12 | 201 | 435 | 280 | 400 | 202 | 255 | 165 | 240 | 一 | 180 | 10.5 | 133 | 91 | 30 | 35 |
| 7804 | 864 | 160 | 192 | 192 | 60 | 26 | M12 | 201 | 435 | 280 | 400 | 202 | 255 | 165 | 240 | 190 | 180 | 10.5 | 103 | 91 | 30 | 35 |
優惠券
我們的微信
13957717877
13957796089